|
【綜合診所裝修效果圖】727張
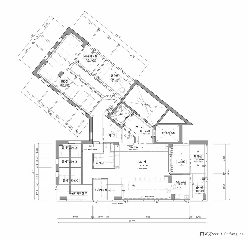
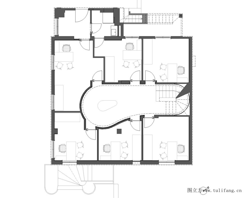
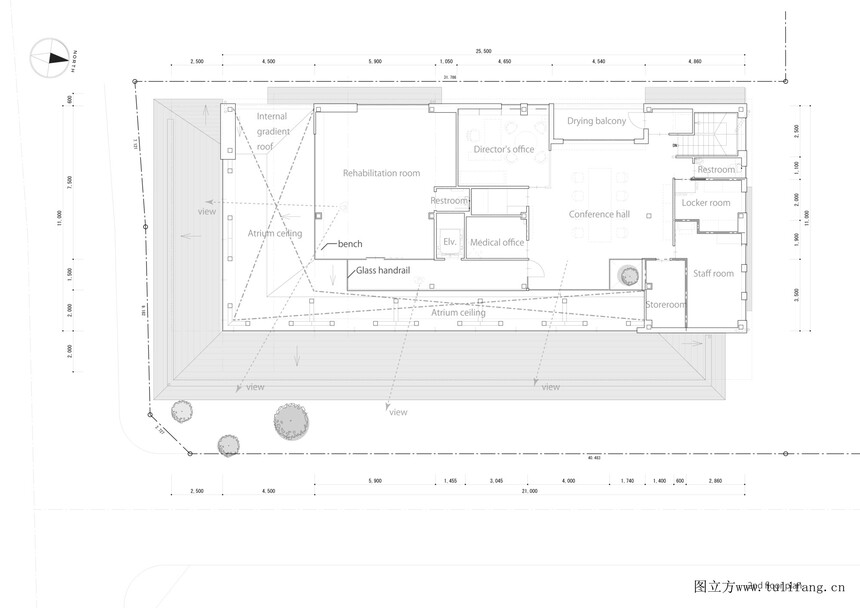
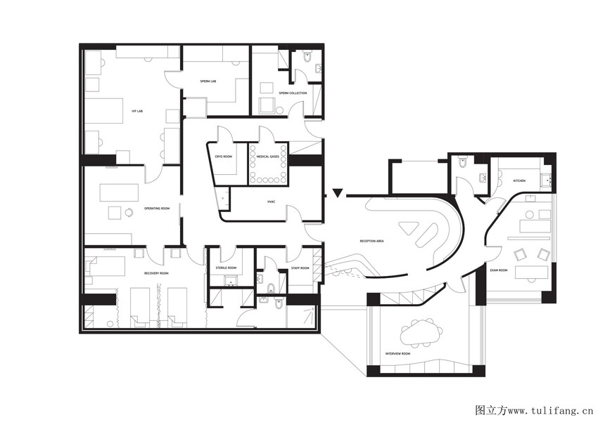
綜合診所是人們健康保健的重要場所之一,因此診所的裝修設計不僅僅是美觀與實用的結合,更重要的是能夠營造出舒適、溫馨的就醫環境,為病人提供更好的治療體驗。本文將從診所裝修的意義、裝修設計的重點及實際案例進行探討,希望能夠為您的診所裝修提供一些有益的參考。 一、診所裝修的意義 1. 彰顯診所形象 診所裝修是診所的重要標志之一,一個優雅、精致的診所裝修可以順應時代潮流,彰顯診所的現代感、專業感,并展示出診所的品牌形象,增強患者對診所的信任感。 2. 創造舒適的就醫環境 在醫療保健行業中,診所的裝修設計要注重舒適性和人性化,創造出一種放松、舒適的就醫環境,減輕患者的緊張和焦慮,同時也能夠為醫生提供更好的工作環境,提高醫療服務的質量。 3. 提升患者滿意度 一家優雅、舒適的診所會讓患者感到更加放心和安心,從而提高患者的滿意度。患者的滿意度不僅可以提高診所的知名度和美譽度,還能夠為診所帶來更多的口碑宣傳。 二、診所裝修的重點 1. 色彩搭配 診所的色彩搭配要以柔和、舒適為主,可以采用一些溫暖的色調,如米白色、淡黃色、淺藍色等。同時,要根據診所的特點以及服務內容來選擇色彩,比如兒科診所可以選擇一些明亮、活潑的色彩,而成人科診所則可以選擇一些沉穩、專業的色彩。 2. 空間布局 診所的空間布局對于診所的舒適度和實用性至關重要。一般來說,診所的空間布局應該遵循“前廳式接待、分科診療、合理使用空間”的原則。前廳式接待可以提升患者的舒適度,分科診療可以提高醫生的工作效率,合理使用空間可以節省成本并提升診所的整體美感。 3. 燈光設計 診所的燈光設計也是非常重要的,一個適宜的燈光設計可以給人帶來舒適、溫馨的感覺,并且可以提升診所的美感。在燈光設計方面,可以選擇一些柔和的燈光,比如黃色的燈光或者暖白色的燈光,這樣可以讓患者感到更加舒適和放松。 三、實際案例 以下是某地區一家綜合診所的裝修案例: 該診所的主色調為淡黃色,這種色調既溫暖又舒適,能夠讓患者感到更加放松和舒適。同時,該診所的前廳式接待區域采用了圓形的接待臺,這樣可以讓患者感到更加親切和舒適,同時也可以提高患者的滿意度。 該診所的診療區域采用了分科的設計,每個科室都有自己獨立的區域,這樣可以提高醫生的工作效率,并且可以讓患者更加方便地就醫。此外,該診所的燈光設計也非常合理,采用了柔和的燈光,讓人感到非常舒適。 總之,診所的裝修設計不是簡單的美化,而是要考慮到患者的舒適性和醫生的工作效率,為患者提供更好的治療體驗。希望本文對您的診所裝修提供一些有益的參考。
|























































































































































































































































































































































































































































































































































































































































































































































